BACK TO RESIDENCES

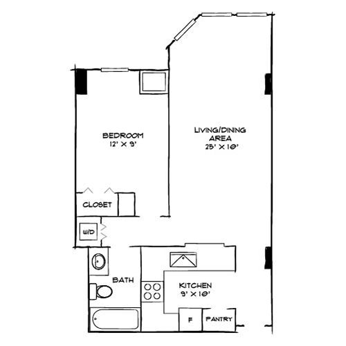
Emory

Diagram
Huntington Gateway - Alexandria, VA - Emory Floor Plan Diagram
Huntington Gateway - Alexandria, VA - Kitchen

One clear monthly price that includes 1 gig high-speed internet and all required fees—no surprises, just seamless living.

Available Units

Unit #002-0407
Starting at $1,775
627 Sq. Ft.
Available Apr 12
Unit #002-0307
Starting at $1,760
627 Sq. Ft.
Available Jun 16